Affitto - Capannone
STABIO – STABILE INDUSTRIALE / COMMERCIALE NUOVA COSTRUZIONE
In progetto di nuova costruzione una soluzione ideale per imprese che cercano visibilità, funzionalità e collegamenti efficienti in una zona in costante evoluzione.
Dove: zona strategica e dinamica, a ridosso del confine con l’Italia, ideale per attività commerciali, industriali o logistiche. Ottimi collegamenti con l’autostrada Lugano–Milano e la rete cantonale, vicina alla stazione di Stabio. L’area è servita da infrastrutture moderne e aziende attive, perfetta per chi cerca efficienza logistica e visibilità.
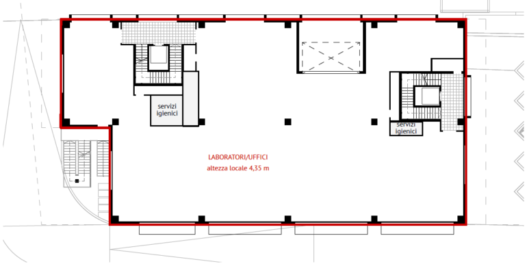
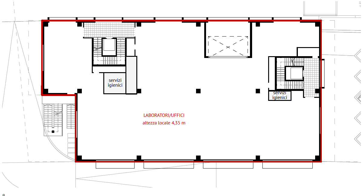
Cosa: Lo stabile si sviluppa su quattro piani per una superficie complessiva di circa 2600 m² effettivi, con un’altezza utile interna di 4.5 metri. L’accessibilità verticale è garantita da due scale interne, una scala esterna e due ascensori/montacarichi, permettendo una movimentazione comoda ed efficiente di persone e merci su tutti i livelli. La distribuzione interna degli spazi è così articolata: il piano interrato dispone di circa 2’600 m² destinati a magazzino e deposito, oltre a locali tecnici; il piano terra comprende spazi adibiti a magazzino e laboratorio; il primo piano ospita laboratori e uffici. All’esterno si trovano rampe di carico e scarico, un ampio piazzale di manovra e parcheggi a disposizione.
Ti piacerà perché:
- Prossima costruzione moderna e funzionale
- Dotato di impianto geotermico a pozzo (acqua di falda) per riscaldamento e raffrescamento
- Tecnologia avanzata e soluzioni a basso impatto energetico
- Impianto fotovoltaico
- Area attrezzata per carico e scarico merci
- Viabilità interna efficiente e agevole
- Disponibilità di parcheggi scoperti e posti riservati per disabili
- Ambienti flessibili e facilmente modulabili
- Ottima accessibilità, anche con mezzi pesanti
- Posizione strategica, vicina al confine e servita dai mezzi pubblici
FUTURA EDIFICAZIONE PREVISTA IN 18/20 MESI
LOCAZIONE SU RICHIESTA










